Velkommen til Svingelsvej 34 i Nakskov, der er attraktivt beliggende i den ældre charmerende del af byen.
Den arkitektoniske flotte patriciervilla fra 1917 er centralt beliggende i forhold til den indre by med alle indkøbs-/ og transportforbindelser, uddannelsesområderne ved Campus Nakskov, bibliotek, sports- og svømmehal, tennis og padel klub m.m. Derudover er der under 1 km. til det grønne rekreative område ved Svingelen med naturlegeplads, søer og stisystemer, der er oplagt til en skovtur med børnene eller gåtur med hunden.
Ejendommen er løbende vedligeholdt og istandsat med respekt for sin oprindelse, således at de originale vinduer i kernetræ, plankegulve, døre og klassiske herskabelige høje lofter med stuk og rosetter er velbevaret, og dermed også den autentiske charme og atmosfære, der sjældent ses i nyere og moderne byggeri.
Til ejendommen hører en flot anlagt have med minimal vedligeholdelse, hvor den blå Rønne-granit i flisebelægningen er gennemgående, og det smukke japanske kirsebærtræ skaber en oase og frirum væk fra hverdagens gøremål, ja ren balsam for sjælen. Derudover en større overdækning med buet tagkonstruktion, der kan benyttes til både terrasse eller brændeopbevaring, samt et stort udhus til haveredskaber, opbevaring eller værksted.
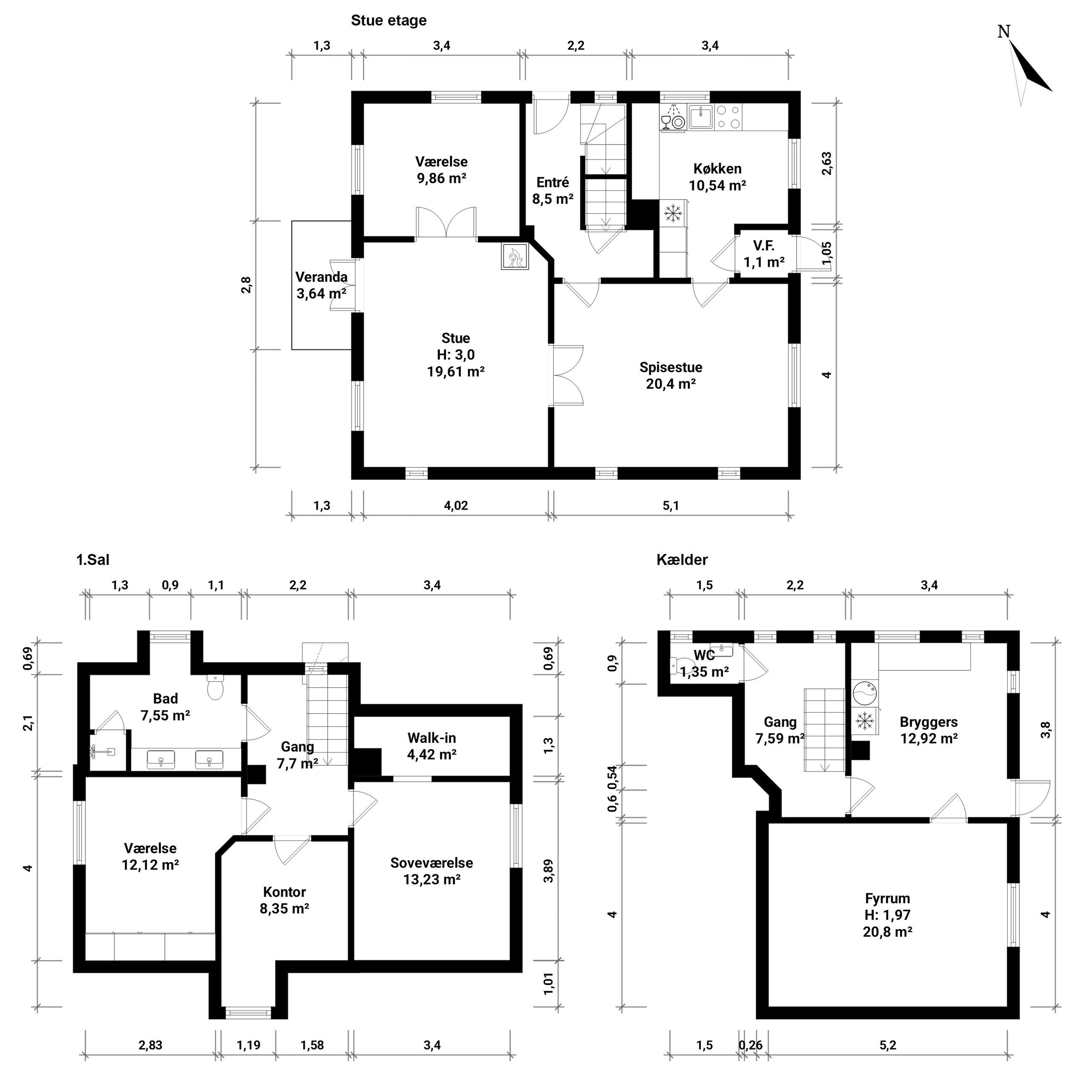
Ejendommen er indrettet med en flot og præsentabel entré. Den tidligere hall kan nemt reetableres ved at åbne til nuværende soveværelse. Fra entréen er der adgang til den store spisestue, hvor der er plads til besøg af den store familie. Med originale franske døre til dagligstuen er der rig mulighed for at lyset kan vandre, ligesom brændeovnen kan gøre en allerede hyggelig aften endnu hyggeligere. Fra dagligstuen er der udgang til den smukke veranda, hvor eftermiddagskaffen kan nydes. I naturlig og delvis åben forbindelse med spisestuen ligger det funktionelle og rummelige køkken med spisekrog, hvorfra der er udgang via mindre vindfang til gårdmiljøet.
Via den originale trappe i entréen er der adgang til 1 salen, hvor de smukke originale gulve går igen. Mindre repos og fordelingsgang med adgang til de 3 gode soveværelser med indbyggede skabe. Derudover charmerende badeværelse, der er indrettet med toilet, nedfældet dobbelt håndvaske i skabsarrangement og bruseniche.
Kælderen fremstår tør og dermed anvendelig, og er indrettet med vaskerum/brygges og fyrrum, der også vil kunne benyttes til fx. værksted eller hobbyrum. Derudover et gæstetoilet med håndvask.
Ejendommen opvarmes med fjernvarme suppleret med brændeovn, der således sikrer en yderst fornuftig årlig varmeøkonomi, ligesom ejendommen også allerede er separatkloakeret og fået indlagt fibernet.
En oplagt ejendom for køberne, der drømmer om en både indflytningsklar og centralt beliggende ejendom, hvor man får både charme og sjæl, og samtidig også kan mærke byens puls, hvorfor ejendommen bør ses og opleves!



