Velkommen
til Borresvej 2, der er centralt beliggende i landsbyen Horslunde.
Landsbyen
Horslunde tilbyder både Dagli´Brugs, pizzaria, frisør og sportshal, samt har et
velfungerende foreningsliv. Byen er tidligere blevet kåret til ”Årets Landsby”,
og ligger centralt med 8 km. til handelsbyen Nakskov og 10 km. til både Onsevig
og Kragenæs lystbådehavne, ligesom der alene er 3 km. til det grønne rekreative
område ved Reventlowparken, hvorfor ejendommen også vil kunne benyttes som
flexbolig uden bopælspligt
Ejendommen,
som historisk set har været vulkaniseringssted eller i vore dage dækcenter, er
opført som murermestervilla med et ekstraordinært flot murværk, og er løbende
vedligeholdt og moderniseret, bl.a. er vinduerne og tegltaget skiftet i år 2000,
og der er ingen tagdækningsmaterialer med asbest. Ejendommen fremstår i en rigtig
god og indflytningsklar stand, og klar til at danne hjem for sine nye ejere.
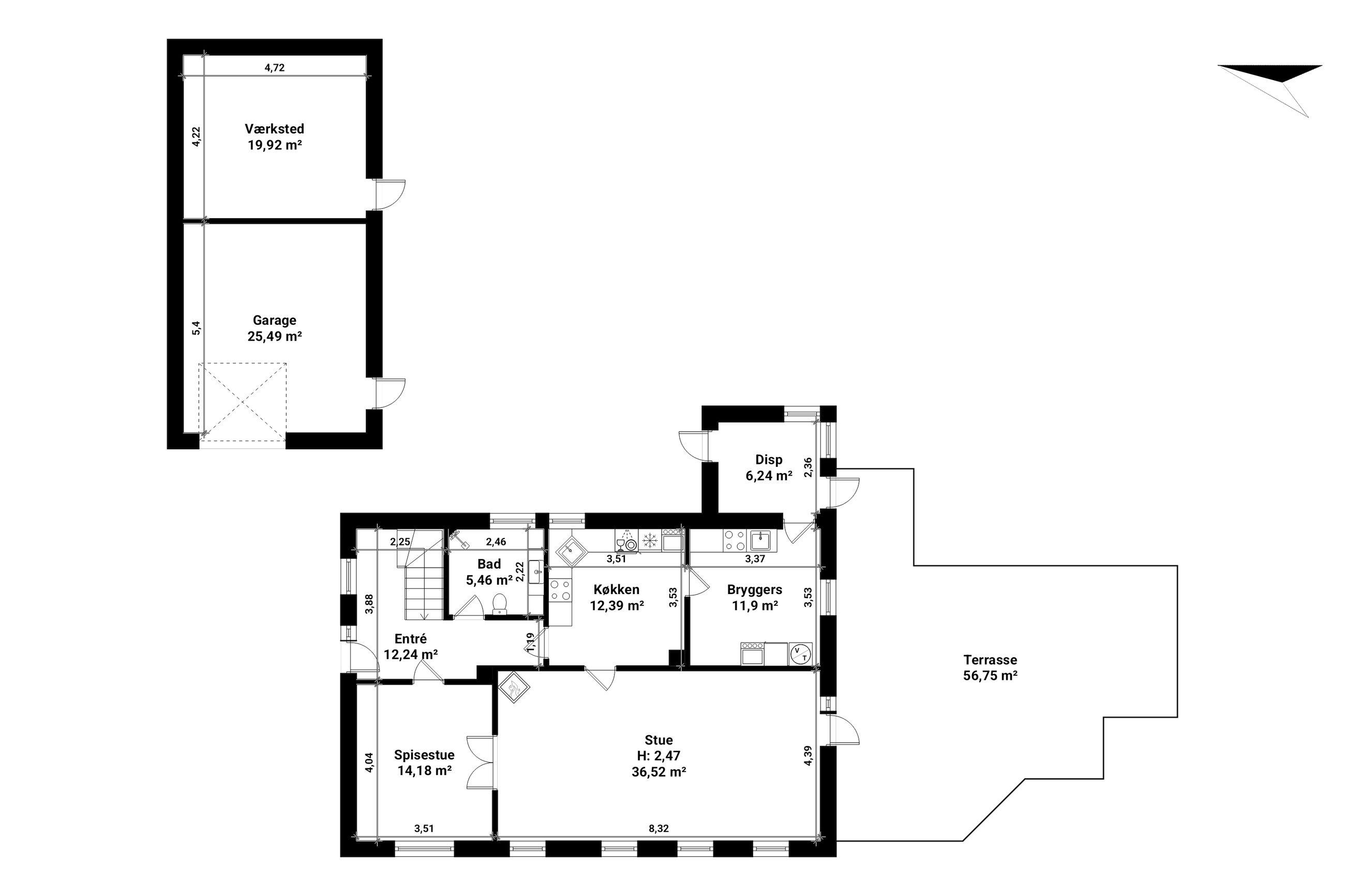
Til
ejendommen hører en dejlig garage med tilstødende stort værksted med ståltag
samt et mindre udhus. Derudover en dejlig lukket og vedligeholdelsesnem have,
der kan nydes fra det store terrasseareal på 55 kvm., hvor der også er
installeret elektrisk markise.
Ejendommen
er indrettet med en rummelig og præsentabel entré med en god trappe til 1.
salen. Herfra er der adgang til stor spisestue, der dog også vil kunne benyttes
som værelser. Fra spisestuen er der franske døre til den meget rummelige
dagligstue, hvor der er installeret brændeovn, som kan gøre en allerede
hyggelig aften endnu hyggeligere. Fra stuen er der udgang til den store
sydvestvendte træterrasse, ligesom det nydelige elementkøkken ligger i naturlig
forlængelse af stuen, og dermed mulighed for at åbne op til denne. Fra køkkenet,
hvor der også er spisekrog og gulvvarme, er der adgang til kombineret
grovkøkken med indbygningsovn og bryggers med vaskeafsnit. I forlængelse ligger
et nylig opført vindfang med både udgang til træterrassen men også baghaven. Derudover
et nydeligt flisebadeværelse med toilet, håndvask i skabsmiljø og stor
bruseniche samt gulvvarme.
1.
salen er indrettet med fordelingsgang med indbyggede opbevaringsplads. Hele 3
meget store værelser, hvoraf det ene tidligere har været opdelt i to.
Ejendommen
har oliefyret centralvarmeanlæg, der suppleres med brændeovn, ligesom
ejendommen også allerede er separatkloakeret og fået indlagt fibernet.
En oplagt ejendom for den pladskrævende familie, der ønsker landsbymiljøet og et rummeligt indflytningsklart hjem – ja rigtig meget bolig til pengene!



